Poreč, okolí, stavební pozemek s stavebním povolením na 8 bytů, 3 km od moře
- Vlastnický list : Ano
- Stavební povolení : Ano
- Elektrická infrastruktura : Ano
- Vodní infrastruktura : Ano
- Kanalizační infrastruktura : Ano
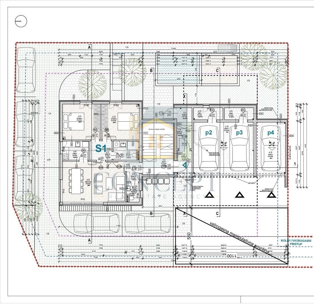
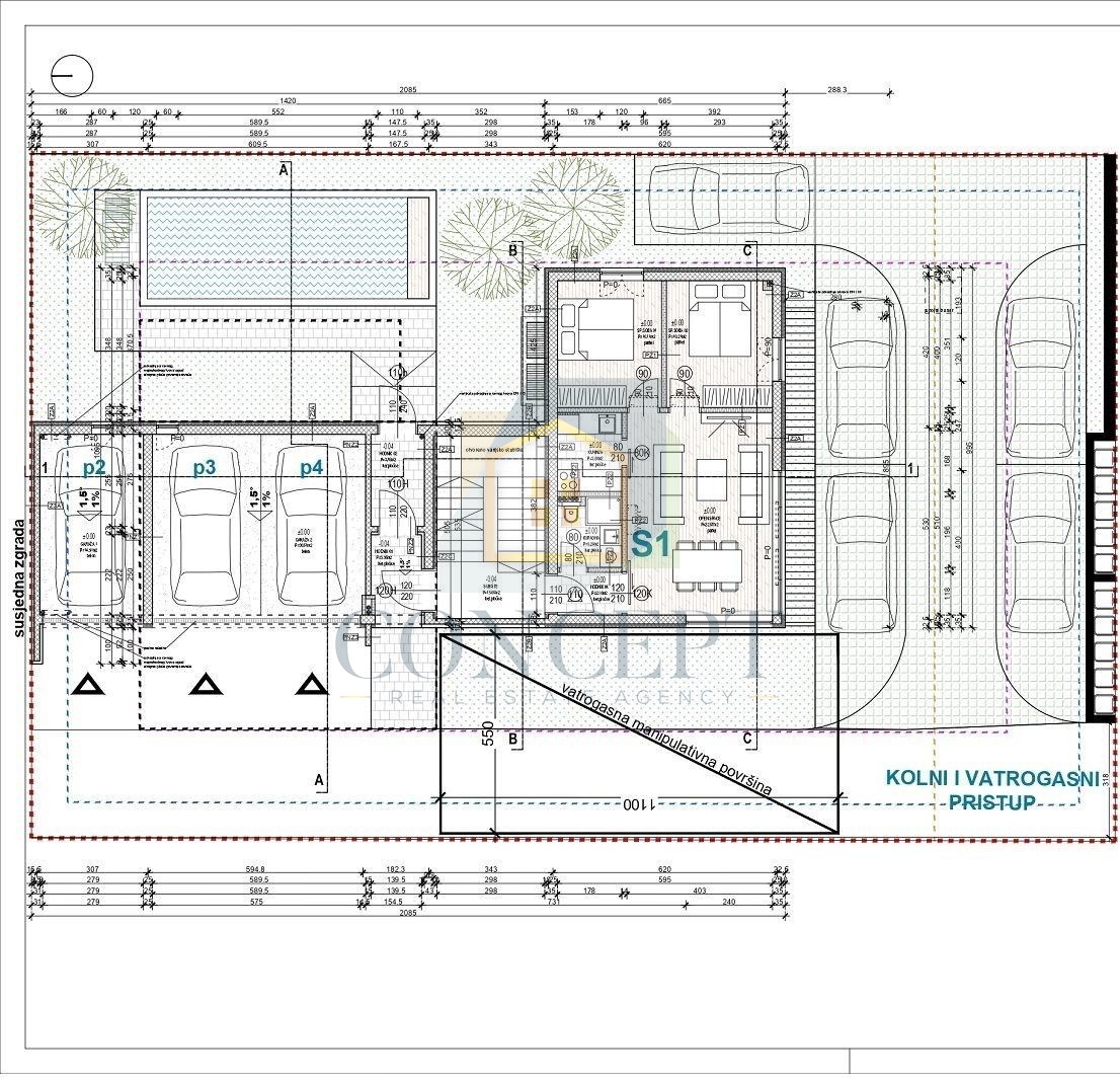
Na vynikající lokalitě v okolí Poreče, pouhé 3 km od moře, se prodává stavební pozemek o rozloze 1.239 m² s pravomocným stavebním povolením na výstavbu dvou budov se celkem 8 byty a dvěma bazény.
Všechny náklady spojené s připojením na infrastrukturu, komunálními poplatky, příspěvky a vyřízením povolení byly zaplaceny. Stavební hrubá plocha činí 883,16 m².
Projekt předpokládá dvě budovy:
První budova se skládá ze 4 bytů o přibližně 55 m². Byty mají terasy o velikosti 23 m² nebo 18 m², zatímco byt č. 4 má také střešní terasu. Celková zastavěná plocha činí 317,99 m², nezastavěná 144,09 m² a je plánován bazén o rozloze 26,24 m².
Druhá budova se skládá ze 4 bytů o přibližně 67 m², každý s terasou o 18 m². Celková zastavěná plocha činí 392,56 m², nezastavěná 154,13 m² a je plánován bazén o rozloze 26,24 m².
Obě budovy mají sklepy s komorami, garáže pro tři auta a každému bytu náleží dvě parkovací místa. Každé budově náleží také bazén o velikosti cca 26 m², který může být přiřazen bytům v přízemí.
Pro více informací a domluvení prohlídky nás neváhejte kontaktovat.
NABÍZÍME BEZPLATNOU ODBORNOU POMOC S FINANCOVÁNÍM
Vážení kupující, přístup k nemovitosti je možný pouze s podepsaným protokolem o prohlídce, který je základem pro další kroky související s koupí a pro výpočet provize v souladu se Zákonem o zprostředkování obchodu s nemovitostmi. Jako autorizovaný zprostředkovatel nemovitostí si CONCEPT d.o.o. účtuje kupujícímu zprostředkovatelský poplatek ve výši 3 % + DPH z dohodnuté kupní ceny za zprostředkovatelské služby při uzavírání předběžné smlouvy nebo kupní smlouvy.
Lokalita
Kontaktujte agenta
-
Monika Vrus+385 99 408 1238info@concept-porec.com